ООО "КОНТАКТЭЛЕКТРО"
Главная/Разъединители РВФ(з) 10 кВ

Разъединители РВФ(з) 10 кВ

klassifikaciya_razedinitelej_bez_nadpisi
Классификация разъединителей

 Разъединитель – электрический аппарат с видимым местом разъединения электрической цепи в воздухе, предназначен для включения и отключения под напряжением участков электрической цепи высокого напряжения при отсутствии нагрузочного тока.

 Разъединители внутренней установки имеют несколько вариантов исполнения. Классифицирующим признаком в вариантах исполнения разъединителя серии РВз является взаимное расположение заземляющих ножей и шарнирного (подвижного) контакта. Так, например, Разъединитель РВз 10/630-I-УХЛ2 конструктивно имеет расположение заземляющих ножей со стороны неподвижного контакта, а у разъединителя  РВз 10/630-II-УХЛ2 заземляющие ножи со стороны шарнирного контакта. что можно рассмотреть на прилагаемом  рисунке

    У разъединителей серии РВФз с проходным изолятором, в качестве классифицирующих признаков выступает расположение заземляющего контакта относительно шарнирного (подвижного) контактного ножа, отмеченное первой римской цифрой. А также расположение проходного изолятора относительно шарнирного контакта, отмечается второй римской цифрой. 

     Разъединители серии РВР классифицируются по количеству полюсов и по количеству и расположению относительно подвижных и шарнирных контактов заземляющих ножей. Первая римская цифра классифицирует по количеству полюсов - I, II и III полюсные. Вторая римская цифра характеризует расположение заземляющих ножей аналогично разъединителям серии РВ 

Варианты исполнения разъединителей определяются схемой электроснабжения, необходимостью заземления участков электрической схемы для безопасного обслуживания в процессе эксплуатации электрических сетей, а также конструктивными особенностями щитовой продукции.

Разъединитель РВФ(з) 630А.
rvf-i
РВФ - I

Разъединитель внутренней установки с проходными изоляторами. Без заземляющих ножей с шарнирным соединением подвижного контакта с противоположной от проходных изоляторов стороны.

  • Напряжение 10 кВ
  • Номинальный ток 630 А.
rvf-ii
РВФ - II

Разъединитель внутренней установки с проходными изоляторами. Без заземляющих ножей с шарнирным соединением подвижного контакта со стороны проходных изоляторов

  • Напряжение 10 кВ
  • Номинальный ток 630 А.
rvf-iii
РВФ - III

Разъединитель внутренней установки с проходными изоляторами с двух сторон, без заземляющих ножей

  • Напряжение 10 кВ
  • Номинальный ток 630 А.
rvfz-i-i
РВФз I-I

Разъединитель внутренней установки с проходными изоляторами. С расположением заземляющих ножей и проходных изоляторов с противоположной стороны от подвижного контакта,  

  • Напряжение 10 кВ
  • Номинальный ток 630 А.
rvfz-i-ii
РВФз I-II

Разъединитель внутренней установки с проходными изоляторами. С шарнирным соединением подвижного контакта со стороны проходных изоляторов, заземляющие ножи расположены с противоположной стороны.

  • Напряжение 10 кВ
  • Номинальный ток 630 А.
rvf-i-iii
РВФз I-III

Разъединитель внутренней установки с проходными изоляторами с двух сторон, С заземляющими ножами с противоположной стороны шарнирного соединения подвижного контакта

  • Напряжение 10 кВ
  • Номинальный ток 630 А.
rvfz-ii-i
РВФз II-I

Разъединитель внутренней установки с проходными изоляторами. Заземляющие ножи со стороны шарнирного соединения подвижных контактов. Проходные изоляторы с противоположной от шарнирного соединения стороне.

  • Напряжение 10 кВ
  • Номинальный ток 630 А.
rvfz-ii-ii_1
РВФз II-II
Разъединитель внутренней установки с проходными изоляторами. Заземляющие ножи и проходные изоляторы со стороны подвижного контакта. Данное исполнение самое распространенное в схемах электроснабжения и компоновки высоковольтных ячеек.
rvf-ii-iii
РВФз II-III

Разъединитель внутренней установки с проходными изоляторами с двух сторон. С заземляющими ножами со стороны подвижного контакта

  • Напряжение 10 кВ.
  • Номинальный ток 630 А.
rvfz-iii-i
РВФз III-I

Разъединитель внутренней установки с проходными изоляторами. С заземляющими ножами с двух сторон. С проходными изоляторами с противоположной стороны от шарнирного соединения подвижного контакта

  • Напряжение 10 кВ
  • Номинальный ток 630 А.
rvfz-iii-ii
РВФз III-II

Разъединитель внутренней установки с проходными изоляторами. Заземляющие ножи с двух сторон. Проходные изоляторы со стороны подвижного контакта

  • Напряжение 10 кВ
  • Номинальный ток 630 А.
rvf-iii-iii
РВФз III-III
Разъединитель внутренней установки с проходными изоляторами. Заземляющие ножи и проходные изоляторы с двух сторон
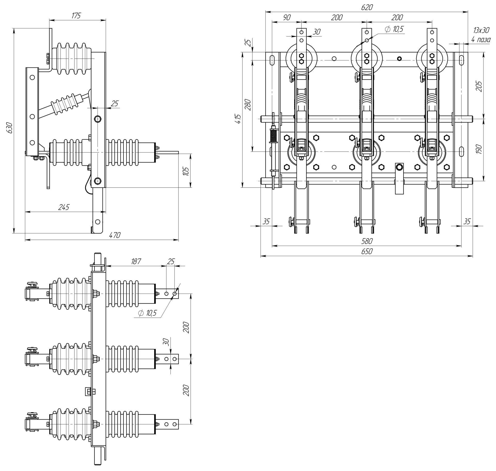
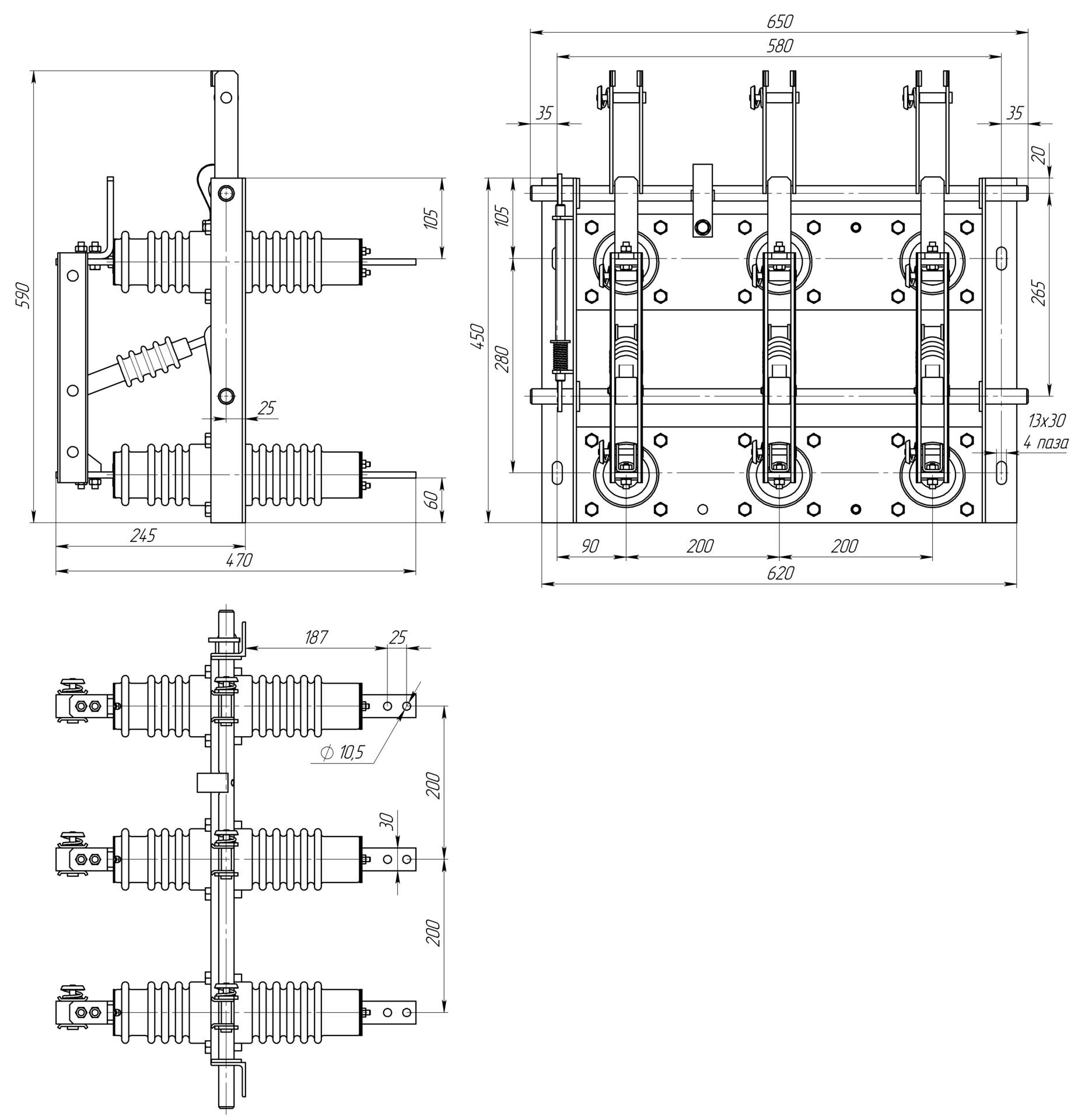
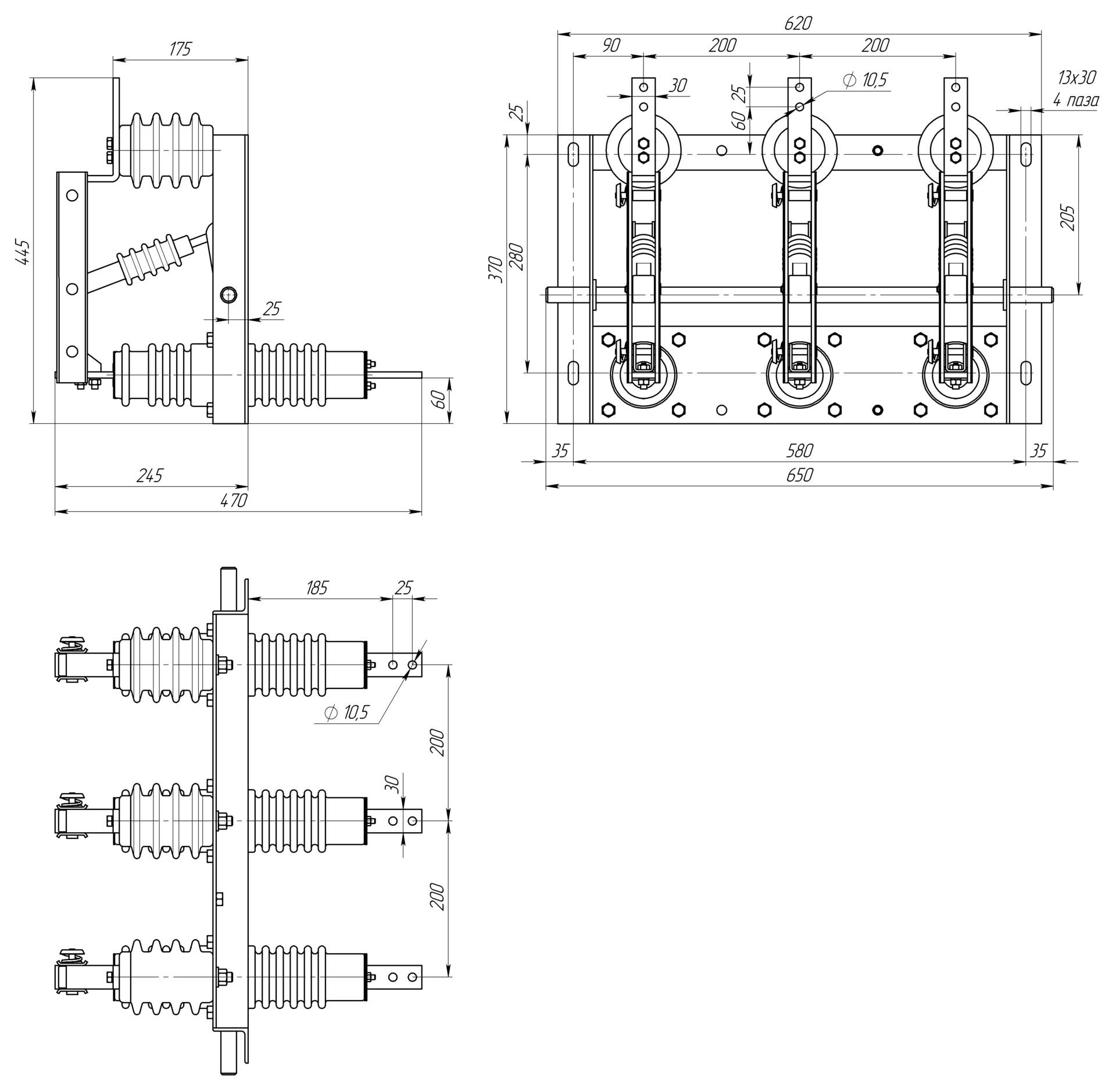
Разъединители РВФ(з) 1000-2000 А.
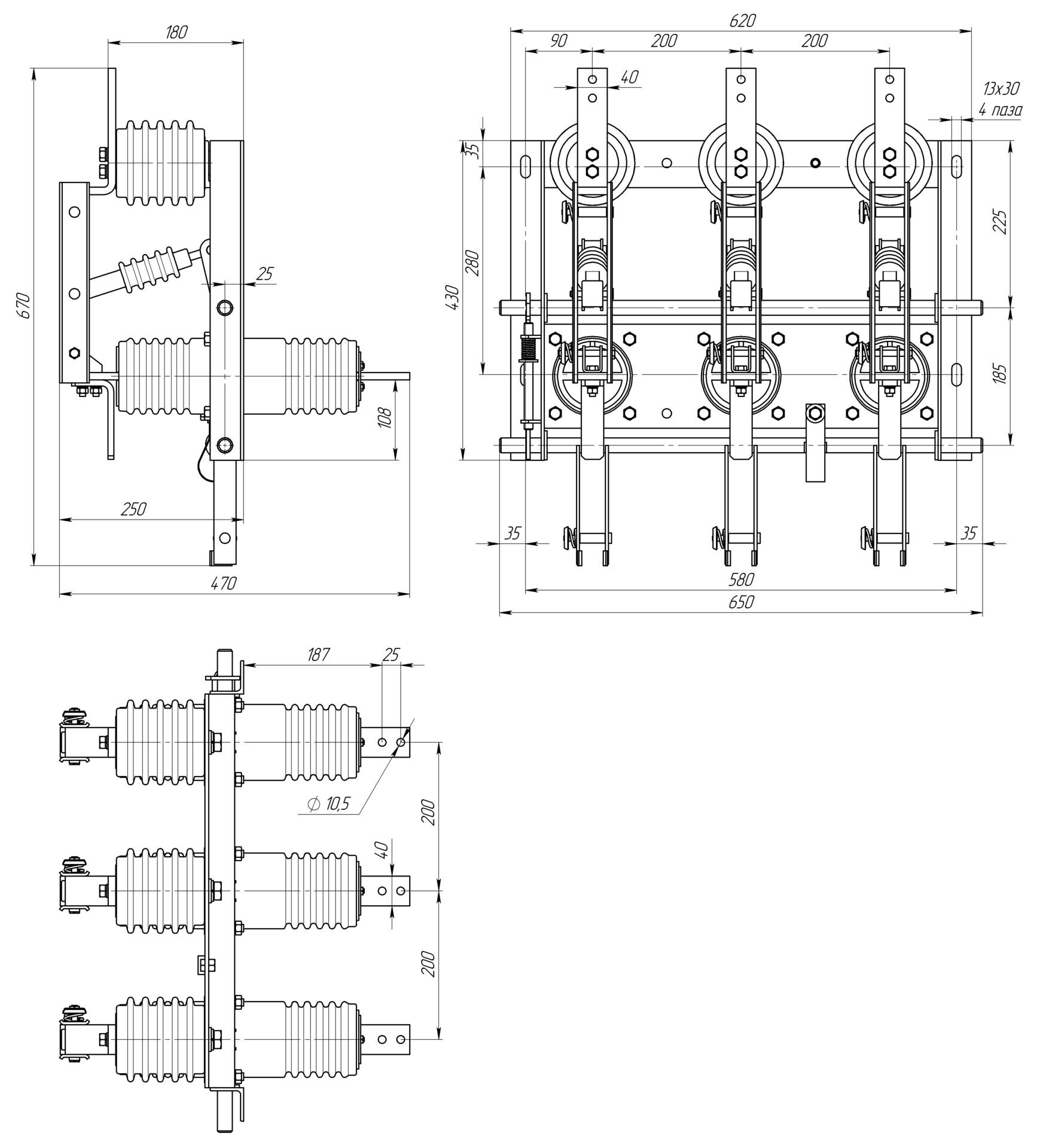
РВФз II-II 10/1000 
РВФз II-II 10/1000 

Разъединитель внутренней установки с проходными изоляторами. Заземляющие ножи и проходные изоляторы со стороны подвижного контакта. Данное исполнение самое распространенное в схемах электроснабжения и компоновки высоковольтных ячеек.

  • Напряжение 10 кВ.
  • Номинальный ток 1000 А.
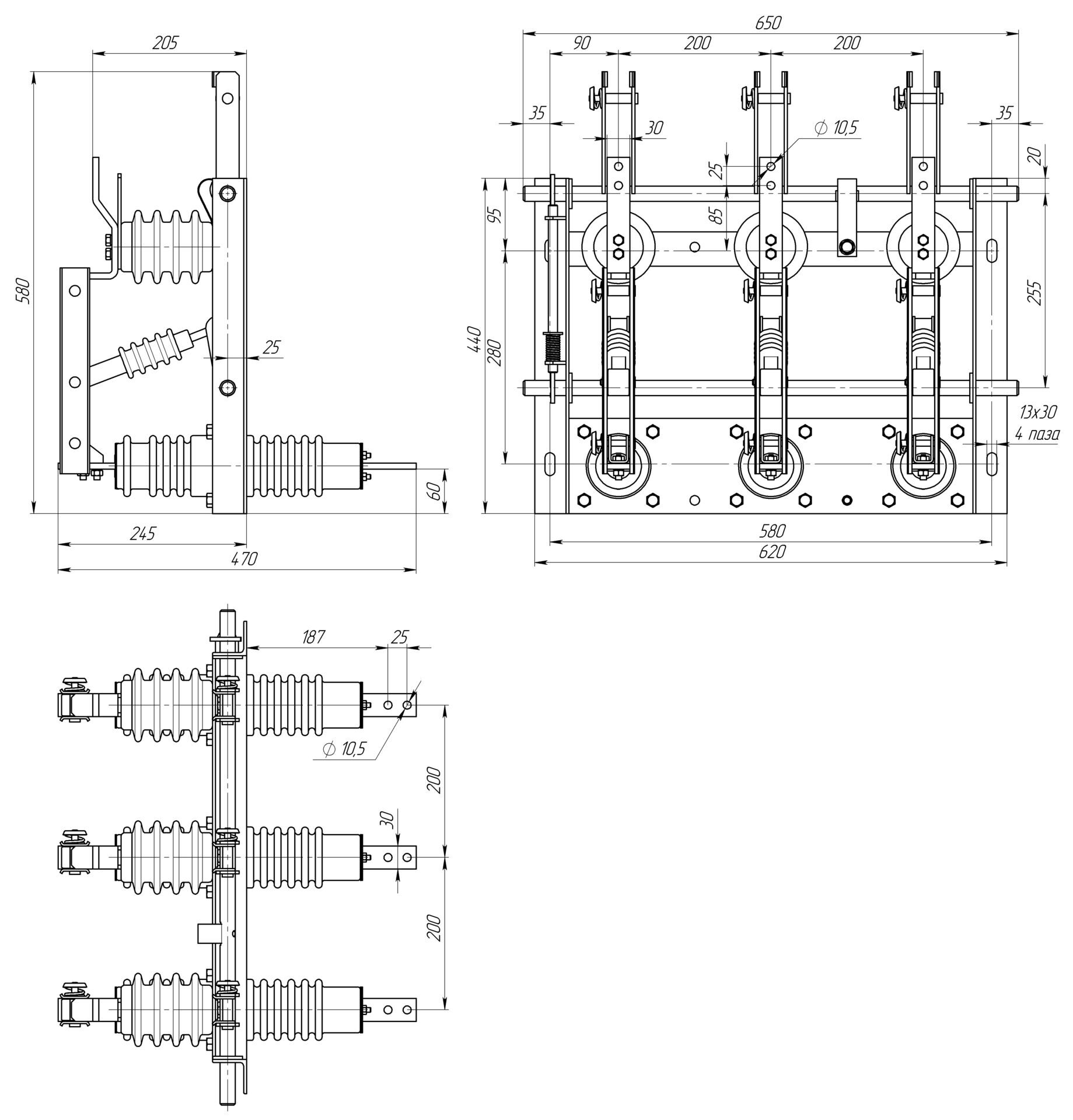
РВФз II-II 10/1600
РВФз II-II 10/1600

Разъединитель внутренней установки с проходными изоляторами. Заземляющие ножи и проходные изоляторы со стороны подвижного контакта. Данное исполнение самое распространенное в схемах электроснабжения и компоновки высоковольтных ячеек.

  • Напряжение 10 кВ
  • Номинальный ток 1600 А.
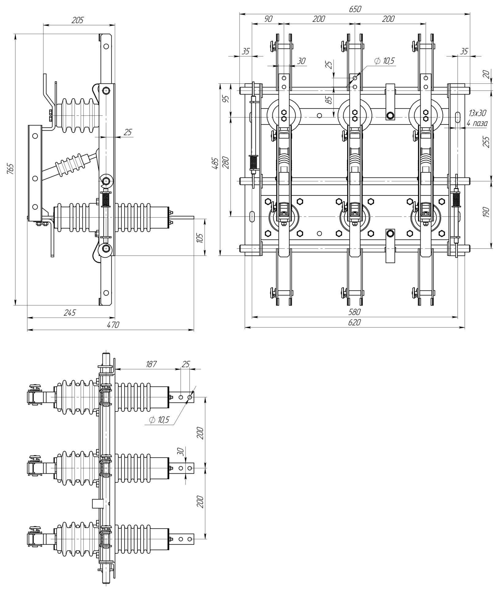
РВФз II-II 10/2000
РВФз II-II 10/2000

Разъединитель внутренней установки с проходными изоляторами. Заземляющие ножи и проходные изоляторы со стороны подвижного контакта. Данное исполнение самое распространенное в схемах электроснабжения и компоновки высоковольтных ячеек.

  • Напряжение 10 кВ
  • Номинальный ток 2000 А.
Контактная информация
Волгоградская обл, г.Волжский, ул., Автодорога 7-42а
это поле обязательно для заполнения
Телефон:*
Спасибо! Форма отправлена
Rambler's Top100 РИА РБК
Заказать продукцию
это поле обязательно для заполнения
Строка ввода:*
это поле обязательно для заполнения
Телефон:*
это поле обязательно для заполнения
E-mail:*
Скрытое поле:
Спасибо! Форма отправлена