ООО "КОНТАКТЭЛЕКТРО"
Главная/Разъединители РВР(3) 10 кВ.

Разъединители РВР(3) 10 кВ.

klassifikator_rvr
Классификация разъединителей

 

 Разъединитель – электрический аппарат с видимым местом разъединения электрической цепи в воздухе, предназначен для включения и отключения под напряжением участков электрической цепи высокого напряжения при отсутствии нагрузочного тока.

 Разъединители серии РВР классифицируются по количеству полюсов и по количеству и расположению относительно подвижных  (шарнирных) контактов заземляющих ножей. Первая римская цифра классифицирует по количеству полюсов - I, II и III полюсные. Вторая римская цифра характеризует расположение заземляющих ножей аналогично разъединителям серии РВ 

Варианты исполнения разъединителей определяются схемой электроснабжения, необходимостью заземления участков электрической схемы для безопасного обслуживания в процессе эксплуатации электрических сетей, а также конструктивными особенностями щитовой продукции.

Привода и комплектация к разъединителям РВР(з)

Привода предназначены для ручного оперирования главными и заземляющими контактами. 

Заказчику предлагается три варианта приводов ПР-3, ПР-10Б с удлиненной рукояткой и ПР-10Б стандартный красный для управления заземляющими ножами.

ПР-3 рекомендуется для управления разъединителями на ток 4000-5000 А. 

rvr-i_10_1600_a
РВР-I-10/1600

Разъединитель однополюсный без заземляющих ножей

  • Номинальное напряжение 10 кВ
  • Номинальный ток 1600 А.
  • Ток термической стойкости 31,5 кА.
rvr-i_10_2000
РВР-I-10/2000

Разъединитель однополюсный без заземляющих ножей

  • Номинальное напряжение 10 кВ
  • Номинальный ток 2000 А.
  • Ток термической стойкости 31,5 кА.
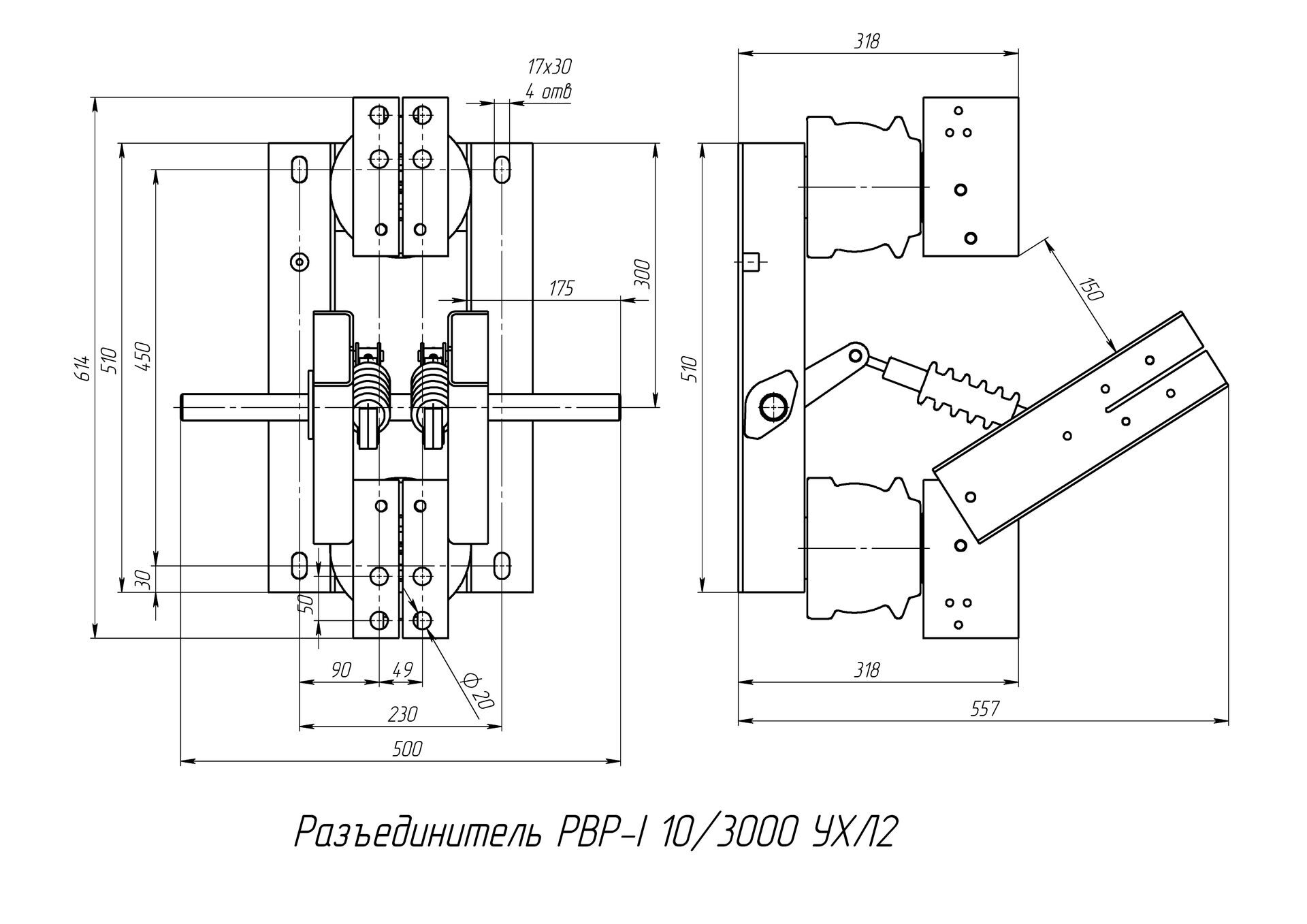
rvr_3000_i
РВР-I-10/3000

Разъединитель однополюсный без заземляющих ножей

  • Номинальное напряжение 10 кВ
  • Номинальный ток 3000 А.
  • Ток термической стойкости 31,5 кА.
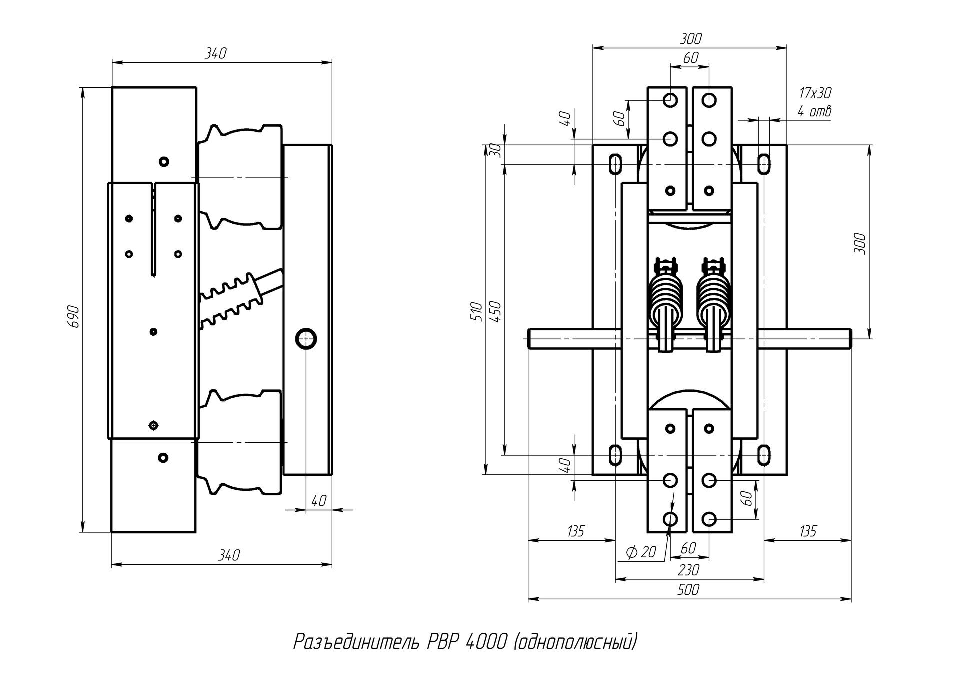
rvr_4000_odnopolyusnyj
РВР-I-10/4000

Разъединитель однополюсный без заземляющих ножей

  • Номинальное напряжение 10 кВ
  • Номинальный ток 4000 А.
  • Ток термической стойкости 50 кА.
rvr-i_5000_sb
РВР-I-10/5000

Разъединитель однополюсный без заземляющих ножей

  • Номинальное напряжение 10 кВ
  • Номинальный ток 5000 А.
  • Ток термической стойкости 50 кА.
rvr-ii_10_2000
РВР-II-10/2000

Разъединитель двухполюсный без заземляющих ножей

  • Номинальное напряжение 10 кВ
  • Номинальный ток 2000 А.
  • Ток термической стойкости 31,5 кА.
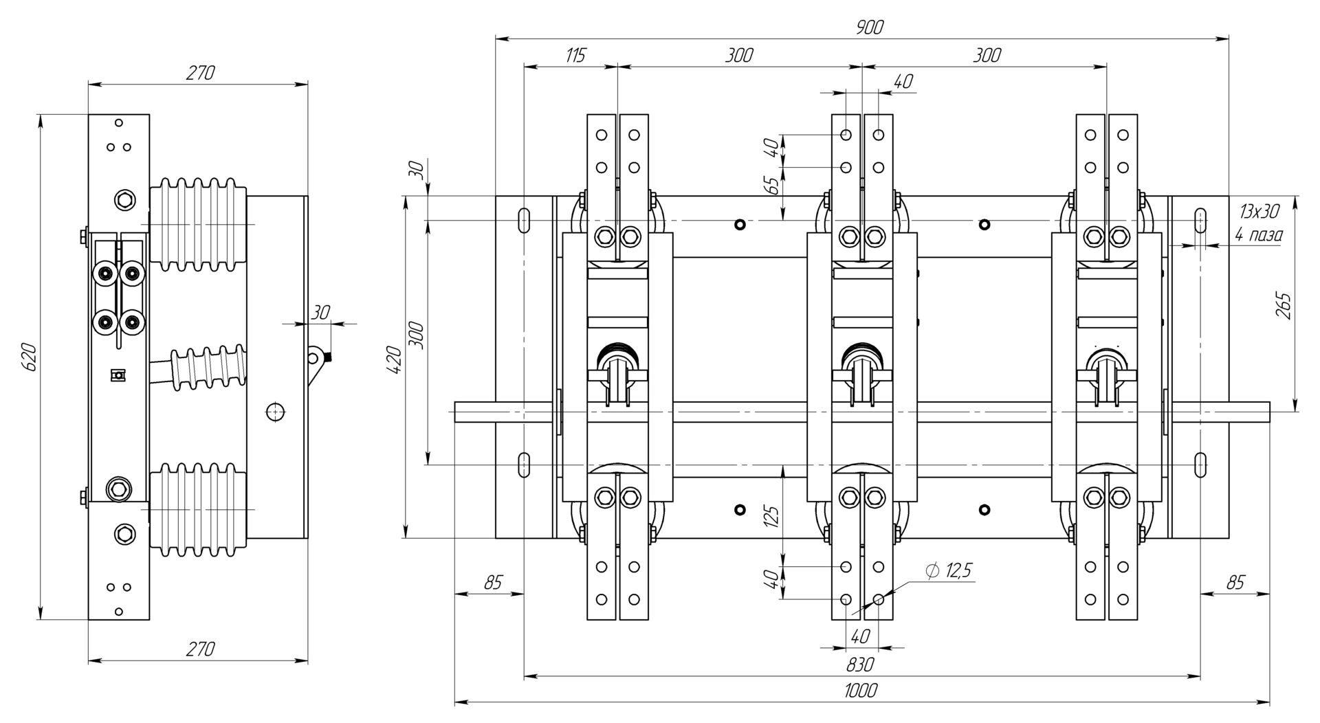
rvr-iii_10_2000
РВР-III-10/2000

Разъединитель трехполюсный без заземляющих ножей

  • Номинальное напряжение 10 кВ
  • Номинальный ток 2000 А.
  • Ток термической стойкости 31,5 кА.
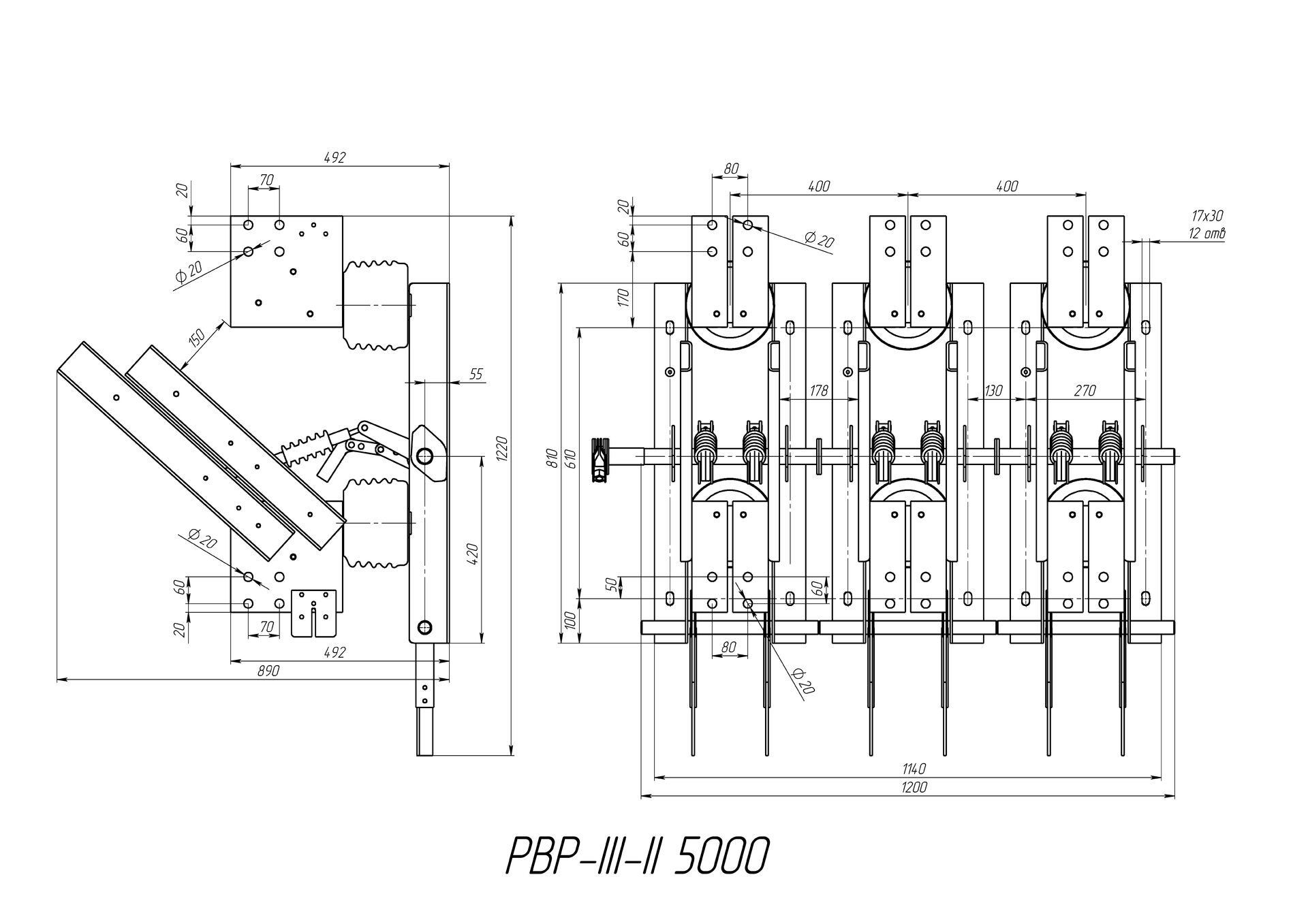
rvr-iii_10_3000
РВР-III-10/3000

Разъединитель трехполюсный без заземляющих ножей

  • Номинальное напряжение 10 кВ
  • Номинальный ток 3000 А.
  • Ток термической стойкости 31,5 кА.
rvr-iii_4000
РВР-III-10/4000

Разъединитель трехполюсный без заземляющих ножей

  • Номинальное напряжение 10 кВ
  • Номинальный ток 4000 А.
  • Ток термической стойкости 50 кА.
rvr-iii_5000

РВР-III-10/5000

Разъединитель трехполюсный без заземляющих ножей

  • Номинальное напряжение 10 кВ
  • Номинальный ток 5000 А.
  • Ток термической стойкости 50 кА.
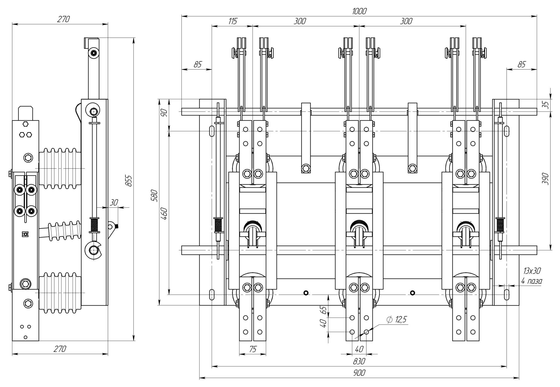
rvrz-i_10_2000
РВРз-III-I-10/2000

Разъединитель трехполюсный, заземляющие ножи со стороны неподвижного контакта.

  • Номинальное напряжение 10 кВ
  • Номинальный ток 2000 А.
  • Ток термической стойкости 31,5 кА.
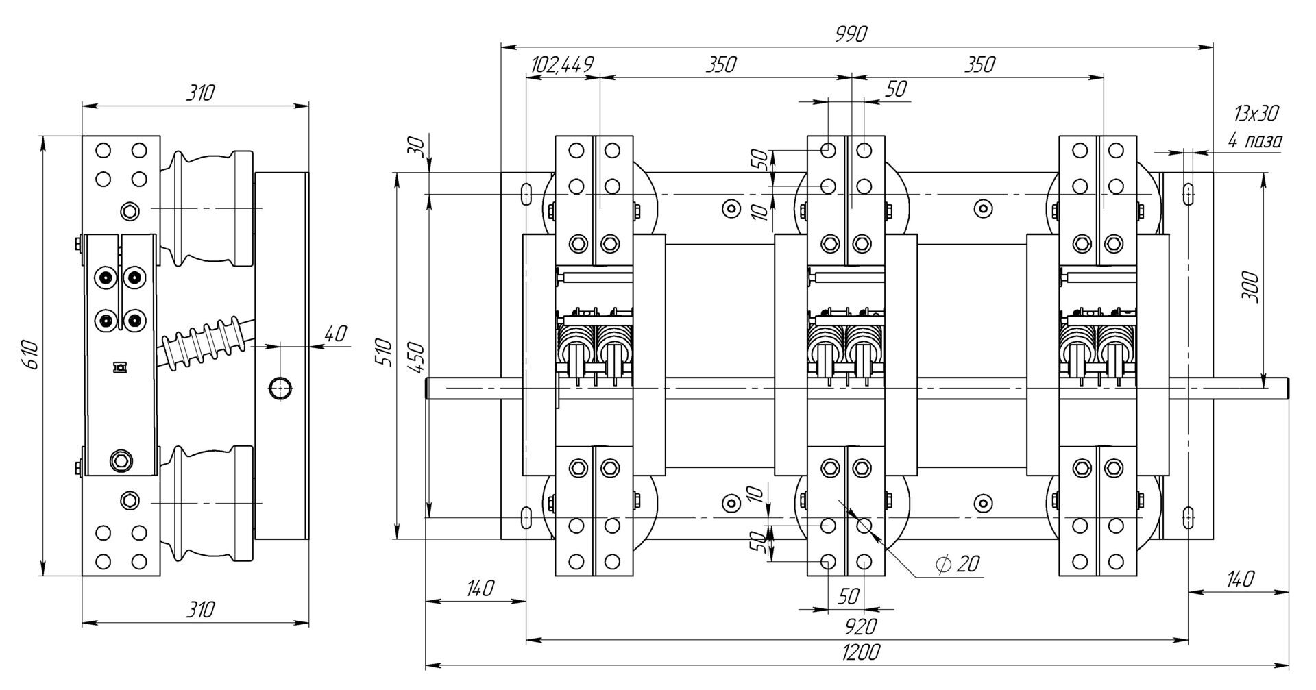
rvrz-ii_10_2000
РВРз-III-II-10/2000

Разъединитель трехполюсный, заземляющие ножи со стороны подвижного контакта.

  • Номинальное напряжение 10 кВ
  • Номинальный ток 2000 А.
  • Ток термической стойкости 31,5 кА.
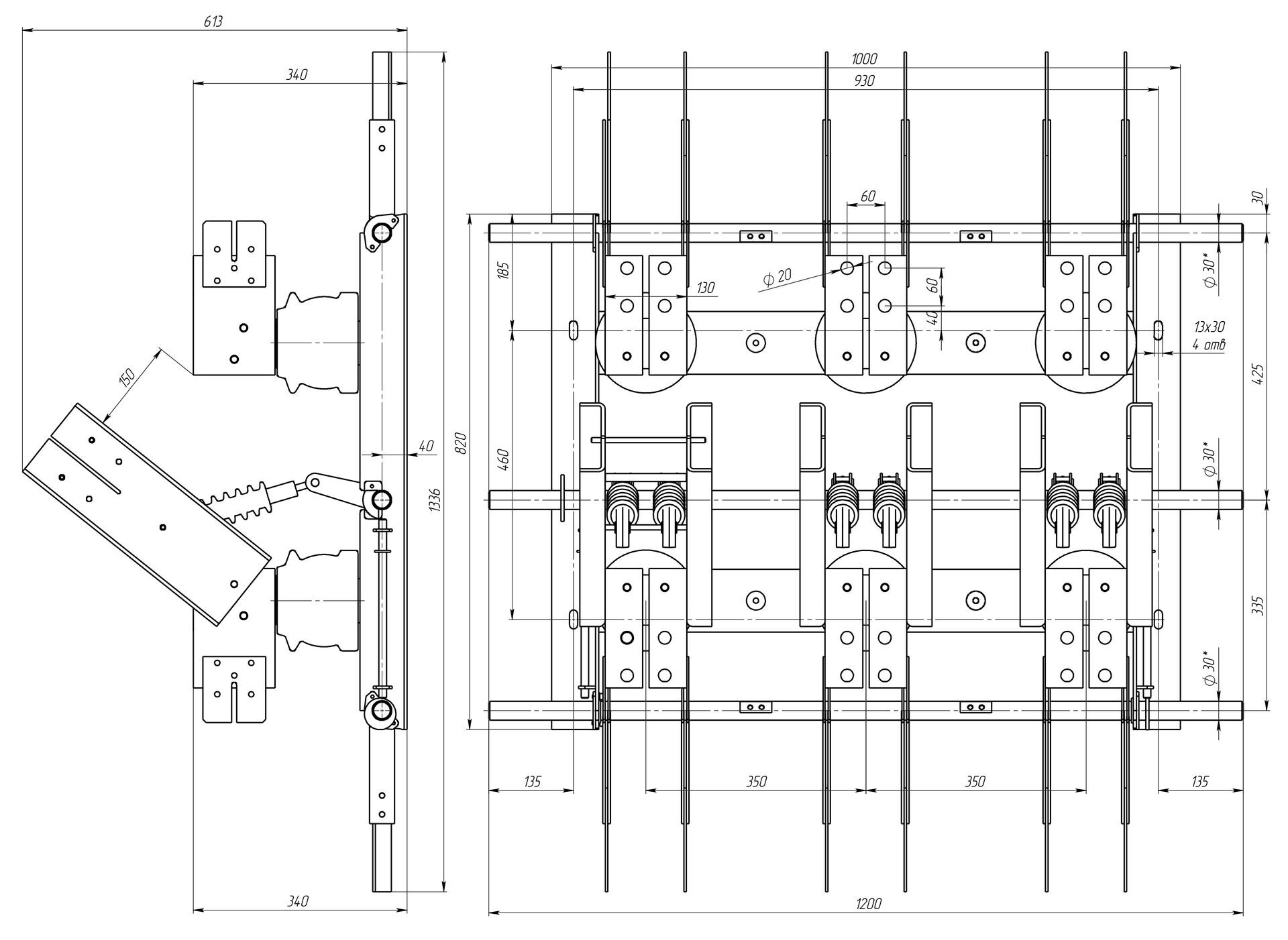
rvrz-iii-2_10_2000_montazhnaya_shema_otklyucheno
РВРз-III-III-10/2000

Разъединитель трехполюсный, заземляющие ножи с двух сторон.

  • Номинальное напряжение 10 кВ
  • Номинальный ток 2000 А.
  • Ток термической стойкости 31,5 кА.
rvr-iii-i_10_3000
РВРз-III-I-10/3000

Разъединитель трехполюсный, заземляющие ножи со стороны неподвижного контакта.

  • Номинальное напряжение 10 кВ
  • Номинальный ток 3000 А.
  • Ток термической стойкости 31,5 кА.
rvrz-iii-ii_10_3000
РВРз-III-II-10/3000

Разъединитель трехполюсный, заземляющие ножи со стороны подвижного контакта.

  • Номинальное напряжение 10 кВ
  • Номинальный ток 3000 А.
  • Ток термической стойкости 31,5 кА.
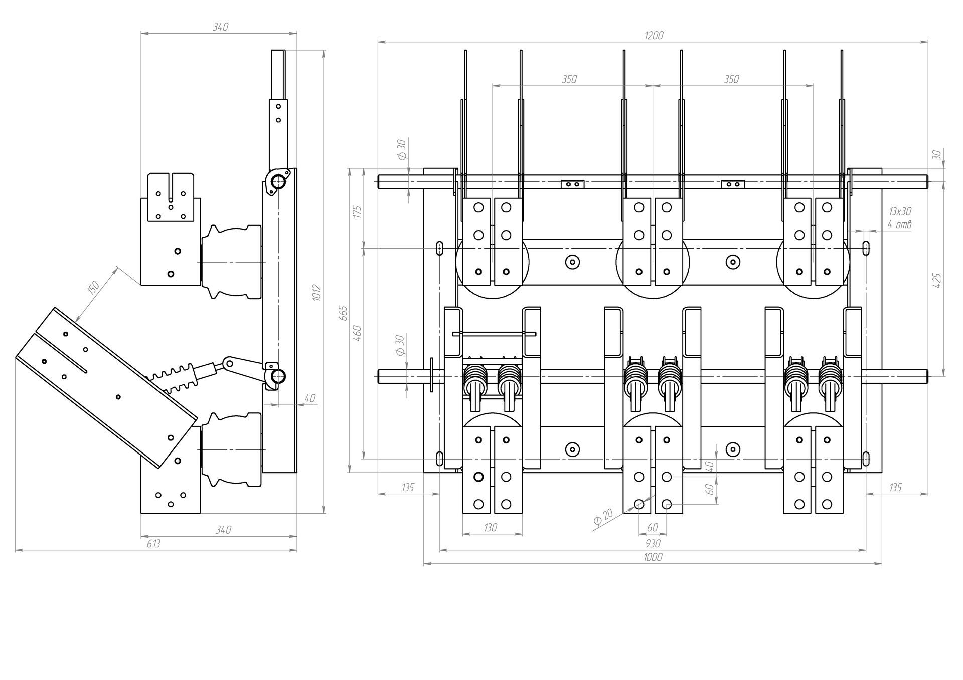
rvr-iii-iii_10_3000
РВРз-III-III-10/3000

Разъединитель трехполюсный, заземляющие ножи с двух сторон.

  • Номинальное напряжение 10 кВ
  • Номинальный ток 3000 А.
  • Ток термической стойкости 31,5 кА.
rvrz-iii-i_4000
РВРз-III-I-10/4000

Разъединитель трехполюсный, заземляющие ножи со стороны неподвижного контакта.

  • Номинальное напряжение 10 кВ
  • Номинальный ток 4000 А.
  • Ток термической стойкости 50 кА.
rvrz-iii-ii_4000_montazhnaya_shema
РВРз-III-II-10/4000

Разъединитель трехполюсный, заземляющие ножи со стороны подвижного контакта.

  • Номинальное напряжение 10 кВ
  • Номинальный ток 4000 А.
  • Ток термической стойкости 50 кА.
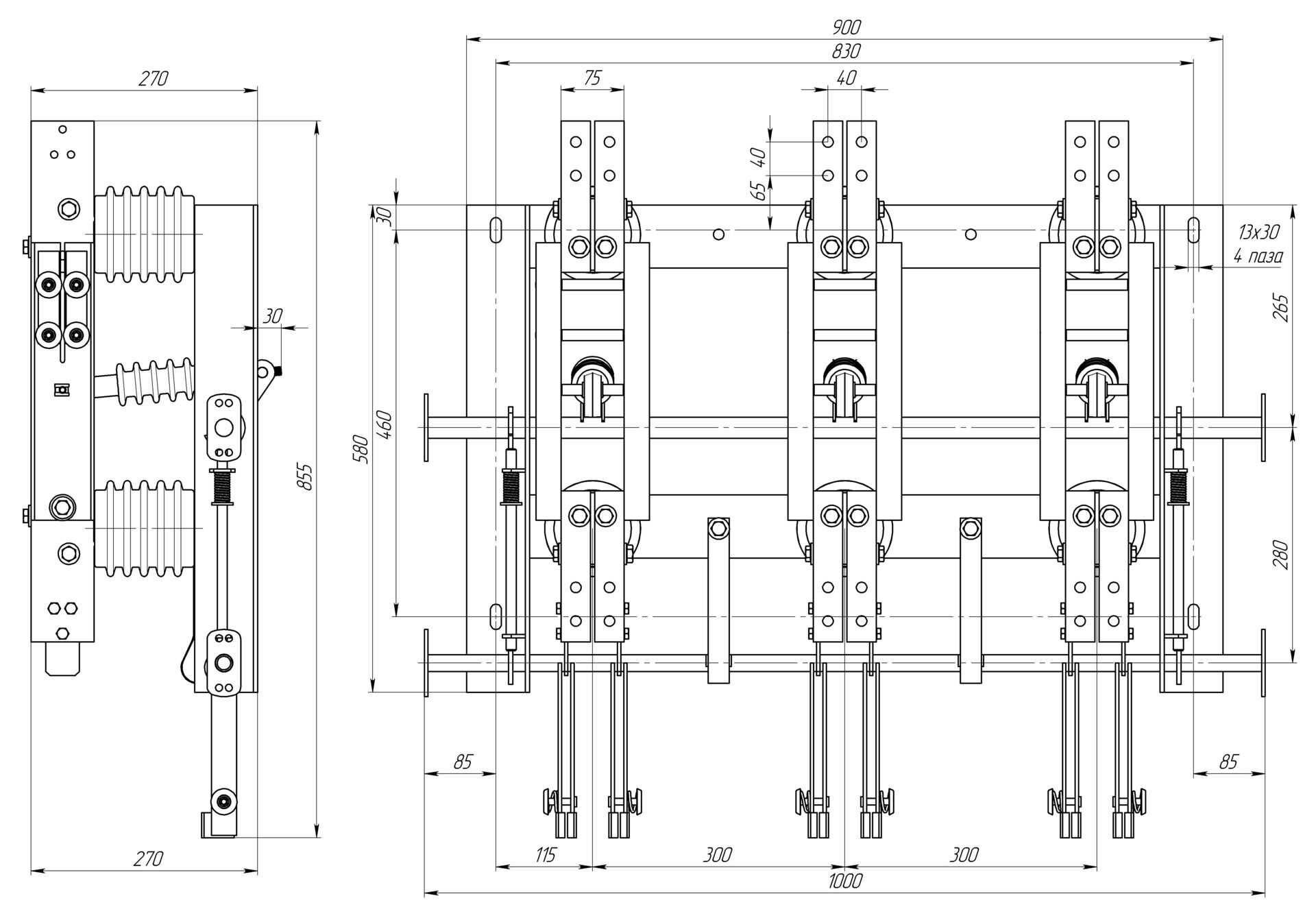
rvrz-iii-iii_4000
РВРз-III-III-10/4000

Разъединитель трехполюсный, заземляющие ножи с двух сторон.

  • Номинальное напряжение 10 кВ
  • Номинальный ток 4000 А.
  • Ток термической стойкости 50 кА.
rvrz-iii-i_5000
РВРз-III-I-10/5000

Разъединитель трехполюсный, заземляющие ножи со стороны неподвижного контакта.

  • Номинальное напряжение 10 кВ
  • Номинальный ток 5000 А.
  • Ток термической стойкости 50 кА.
rvrz-iii-ii_5000
РВРз-III-II-10/5000

Разъединитель трехполюсный, заземляющие ножи со стороны подвижного контакта.

  • Номинальное напряжение 10 кВ
  • Номинальный ток 5000 А.
  • Ток термической стойкости 50 кА.
rvrz-iii-iii_5000
РВРз-III-III-10/5000

Разъединитель трехполюсный, заземляющие ножи с двух сторон.

  • Номинальное напряжение 10 кВ
  • Номинальный ток 5000 А.
  • Ток термической стойкости 50 кА.
Контактная информация
Волгоградская обл, г.Волжский, ул., Автодорога 7-42а
это поле обязательно для заполнения
Телефон:*
Спасибо! Форма отправлена
Rambler's Top100 РИА РБК
Заказать продукцию
это поле обязательно для заполнения
Строка ввода:*
это поле обязательно для заполнения
Телефон:*
это поле обязательно для заполнения
E-mail:*
Скрытое поле:
Спасибо! Форма отправлена